Maison jumelée située dans un quartier calme et familial de Colònia de Sant Jordi, près de la plage de Marqués. Elle comprend 3 chambres, 2 salles de bains, un salon avec cheminée, un grenier avec terrasse, un jardin, une terrasse arrière et un garage.
Caractéristiques principales de la propriété
- Terrasse
- Éclairage naturel
- Vues
- Vue panoramique
- Exterior
- Espace chill-out
- Climatisation
- Cheminée
- Plan 150m²
- Surface construite 183m²
- Surface habitable 163m²
Ce que vous devez savoir au sujet de la propriété
Maison jumelée située dans un quartier calme de Colònia de Sant Jordi, à quelques minutes à pied de la plage de Marqués.
Construite dans les années 1980 et rénovée en 2008, la maison conserve sa cuisine d'origine et dispose d'équipements tels que le chauffage central, la climatisation dans toutes les pièces, des panneaux solaires pour l'eau chaude, des fenêtres à double vitrage, des ventilateurs de plafond, un système d'osmose, un adoucisseur d'eau et des armoires intégrées.
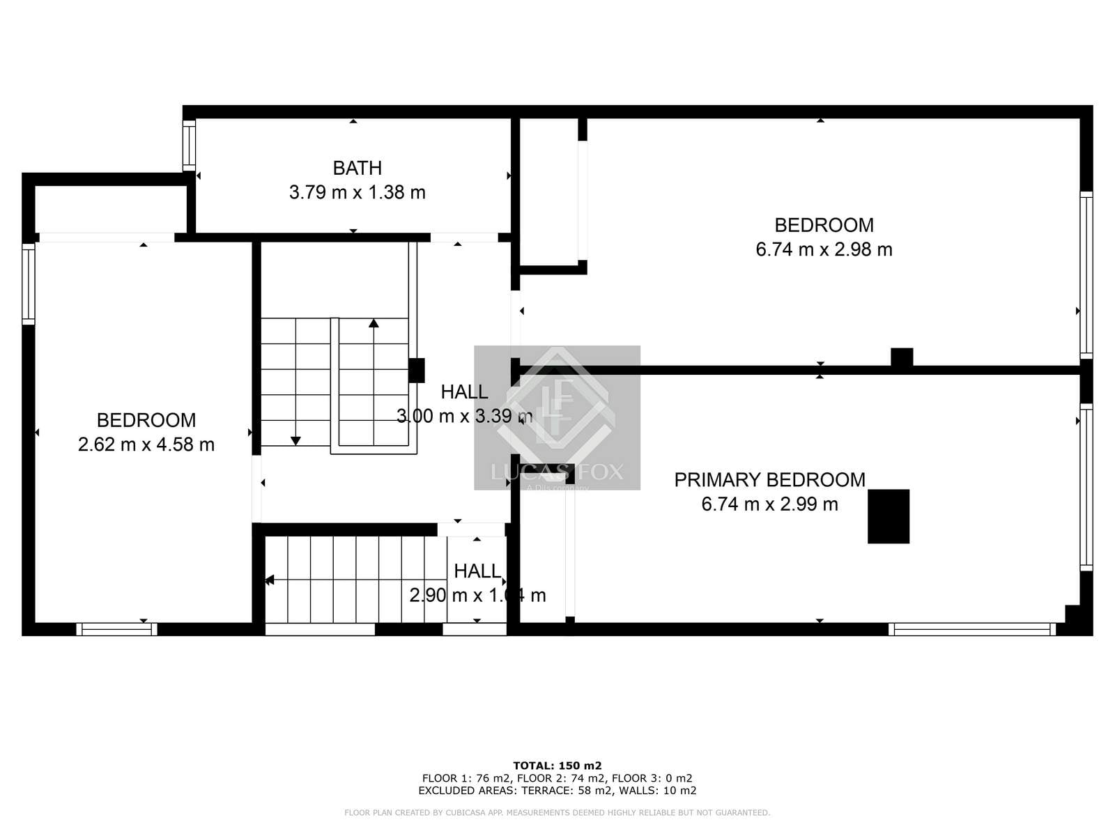
Le rez-de-chaussée comprend un salon-salle à manger avec cheminée, une salle de bain complète, une cuisine séparée avec cellier et une véranda donnant directement sur le jardin. Le premier étage comprend trois chambres doubles et une salle de bain complète, tandis que les combles offrent une pièce donnant accès à une terrasse privée baignée de lumière naturelle et offrant une vue imprenable sur les environs. Le sous-sol comprend un garage pouvant accueillir plusieurs véhicules et des rangements supplémentaires.
L'extérieur de la maison offre un jardin bien entretenu, un patio avant et une terrasse arrière spacieuse.
La propriété est située dans un quartier calme et familial à proximité de la mer, et offre la possibilité d'adapter l'aménagement intérieur et la décoration en fonction de chaque projet.
Extras
Type de propriété : Maison jumelée
Localisation : Quartier calme de Colònia de Sant Jordi, à quelques minutes de la plage de Marqués
Année de construction : années 1980
Rénové en 2008 (en conservant la cuisine d'origine)
Équipement:
Chauffage central
Climatisation dans toutes les pièces
Panneaux solaires pour l'eau chaude
Fenêtres à double vitrage
Ventilateurs de plafond
Système d'osmose
Adoucisseur d'eau général
Armoires encastrées
Distribution:
Rez-de-chaussée : salon-salle à manger avec cheminée, cuisine séparée avec cellier, salle de bain complète, terrasse vitrée avec accès au jardin
Premier étage : trois chambres doubles, salle de bain complète
Grenier : pièce avec accès à une terrasse privée
Sous-sol : Garage avec capacité pour plusieurs véhicules et espace de rangement supplémentaire
Distribution de la propriété
Rez-de-chaussée
Séjour-salle à manger : avec cheminée, grand espace pour manger et coin salon.
Cuisine séparée : équipée de la cuisine d'origine, comprenant un cellier.
Salle de bain complète : à usage général de l'usine.
Terrasse vitrée : se connecte directement au jardin, offrant lumière naturelle et vue.
Premier étage
3 chambres doubles : chacune avec placards intégrés.
1 salle de bain complète : partagée par les chambres.
Grenier
Pièce principale : avec accès à une terrasse privée, idéale pour profiter de la lumière naturelle et de la vue sur les environs.
Sous-sol
Garage : capacité pour plusieurs véhicules.
Espace de rangement supplémentaire : local de rangement ou espace polyvalent.
À l'étranger
Jardin bien entretenu : principal espace vert de la maison.
Cour avant : entrée et accès supplémentaire.
Grande terrasse arrière : espace extérieur polyvalent pour les rassemblements ou la détente.
Certificat énergétique de l'immeuble
Energy Certificate : In process
Propriétés similaires. Majorque
Ce n’est pas ce que vous recherchez?



















































































